PERNUMIA – Al confine con Battaglia Terme, in splendida posizione verde e tranquilla, proponiamo in vendita porzione di testa di casa accostata disposta su due livelli, ideale per chi desidera vivere immerso nella natura restando vicino ai principali servizi.
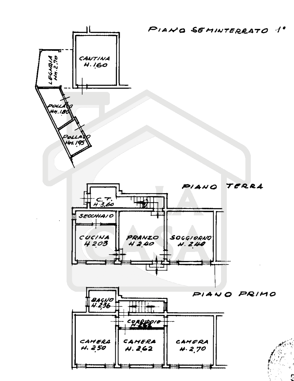
L’abitazione, da ristrutturare, offre la possibilità di creare ambienti su misura valorizzando spazi e dettagli secondo il proprio stile. Al piano terra si trovano un luminoso soggiorno, una cucina separata, una sala da pranzo salendo al piano superiore troviamo il bagno finestrato e tre ampie camere matrimoniali, perfette per garantire comfort e privacy a tutta la famiglia.
La proprietà sorge su un lotto di circa 1.500 mq, perfetto per chi ama la libertà degli spazi aperti e desidera personalizzare il proprio giardino o realizzare un’area relax all’aperto.
Indipendente su tre lati e circondata dal verde, questa soluzione si distingue per tranquillità, privacy e grande potenziale, ideale per chi sogna una casa autentica e ricca di carattere, a pochi minuti dal centro di Pernumia e di Battaglia Terme.
Un angolo di campagna dove riscoprire il piacere della quiete e della vita all’aria aperta.
L’abitazione, da ristrutturare, offre la possibilità di creare ambienti su misura valorizzando spazi e dettagli secondo il proprio stile. Al piano terra si trovano un luminoso soggiorno, una cucina separata, una sala da pranzo salendo al piano superiore troviamo il bagno finestrato e tre ampie camere matrimoniali, perfette per garantire comfort e privacy a tutta la famiglia.
La proprietà sorge su un lotto di circa 1.500 mq, perfetto per chi ama la libertà degli spazi aperti e desidera personalizzare il proprio giardino o realizzare un’area relax all’aperto.
Indipendente su tre lati e circondata dal verde, questa soluzione si distingue per tranquillità, privacy e grande potenziale, ideale per chi sogna una casa autentica e ricca di carattere, a pochi minuti dal centro di Pernumia e di Battaglia Terme.
Un angolo di campagna dove riscoprire il piacere della quiete e della vita all’aria aperta.
Mappa
Contattaci
INFORMAZIONI EXTRA
AMBIENTI
| Soggiorno | |
| Cucina | |
| Ripostigli | 1 |
| Giardino | |
| Cantina |
LIVELLI & COMFORT
| Animali ammessi | |
| Ingresso indipendente | |
| Numero accessi carrai | 1 |

